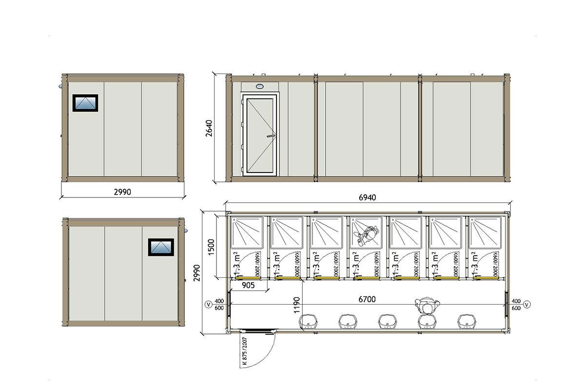
Shower Container KWD 702

  • Height 2,64 m
  • Depth 2,99 m
  • Width 6,94 m
Call Us
Most Viewed