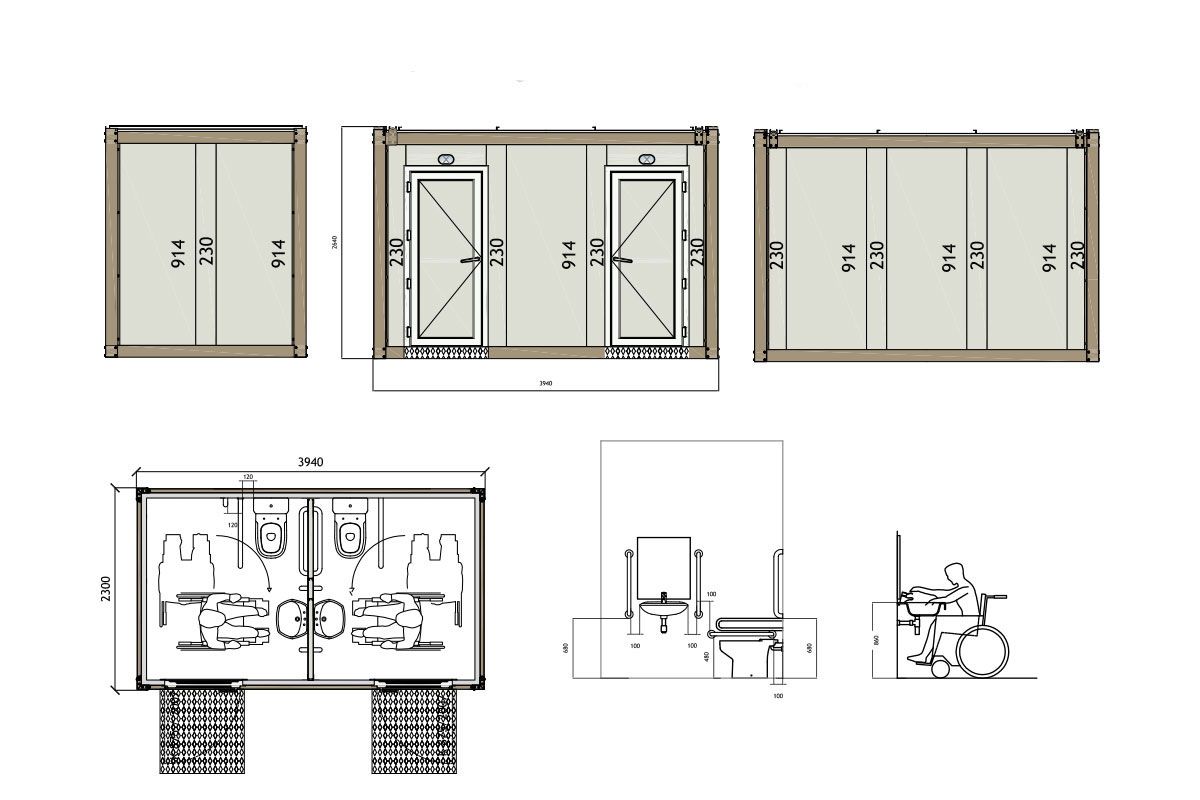
Conteneur sanitaire pour personnes handicapées K2001

  • Hauteur 2,64 m
  • Profondeur 2,3 m
  • Largeur 3,94 m
Appelez-nous
Les plus consultés