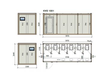
Conteneur