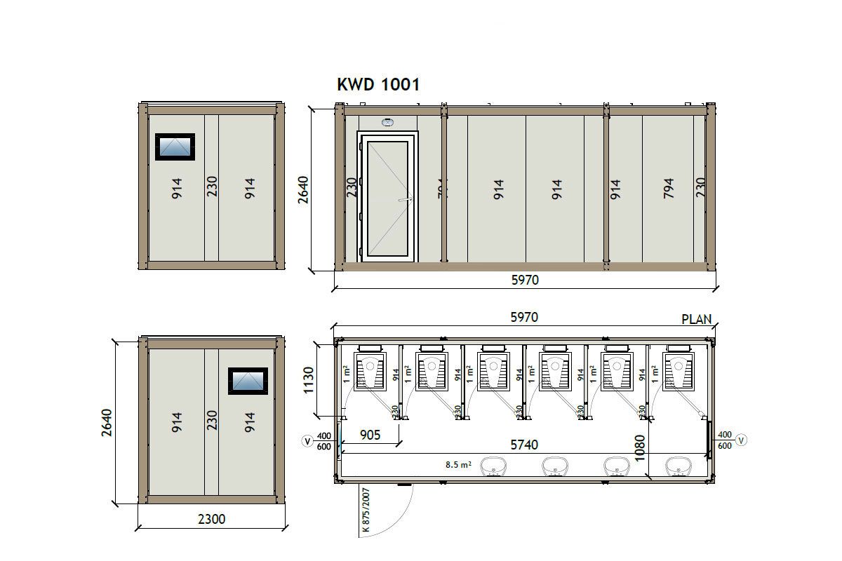
WC Konteyner KW6 230X600

  • Yükseklik 2,64 m
  • Derinlik 2,3 m
  • Genişlik 6 m
Bizi Arayın
En Çok İncelenenler