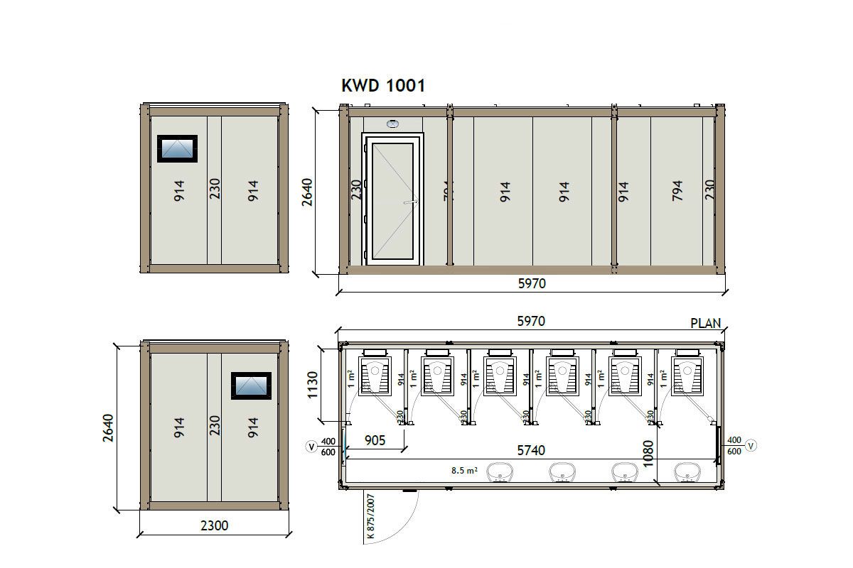
Cabine de toilettes KW6 230X600

  • Hauteur 2,64 m
  • Profondeur 2,3 m
  • Largeur 6 m
Appelez-nous
Les plus consultés